Skip To Content

10857 Gentle Current Way

Parrish, FL 34219
  • $390,000
  • STATUS: Closed
  • ON SITE: 379 Days
  • MLS #: TB8353468
Sold - 06/30/2025
$390,000
SOLD - 06/30/2025
  • 5
    BEDS
  • 0.15
    ACRES
  • 3
    BATHS
  • 0
    1/2 BATHS
  • 2,605
    SQFT
  • $0
    $/SQFT
Neighborhood:
Type:
Single-Family Home
Built:
2025
County:
Area:

School Information

Elementary School:
Middle School:
High School:

Description

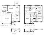
Under Construction. Receive up to $10,000 towards closing costs with the use of preferred lender & title.This two-story, all concrete block constructed home has a large open-concept downstairs with a kitchen overlooking the living and dining room. The kitchen comes equipped with a refrigerator, electric range, microwave and built-in dishwasher. The first floor also features a flex room that provides an area for work or for play, a bedroom, full bathroom, and an outdoor patio. The second floor includes an expansive Bedroom 1, three additional bedrooms that surround a second living area, a third full bathroom, and a laundry room equipped with a washer and dryer. Pictures, photographs, colors, features, and sizes are for illustration purposes only and will vary from the homes as built. Home and community information including pricing, included features, terms and availability. Future Amenity Center to include Clubhouse, Resort Pool, Splash Pad, Playground, Play Lawn, Dog Park and Cable.

Monthly Payment Calculator




© 2026 My Florida Regional MLS DBA Stellar MLS. All rights reserved. All listings displayed pursuant to IDX. All listing information is deemed reliable but not guaranteed and should be independently verified through personal inspection by appropriate professionals. Listings displayed on this website may be subject to prior sale or removal from sale; availability of any listing should always be independently verified. Listing information is provided for consumers personal, non-commercial use, solely to identify potential properties for potential purchase; all other use is strictly prohibited and may violate relevant federal and state law. Data last updated 2026-03-08T16:46:59.25.
www.cartwrightrealtyoftampa.com/homes/160743002
Print Image

10857 Gentle Current Way Parrish, FL 34219

  • Price: $403,990
  • Status: Closed
  • On Site: 379 Days
  • Updated: 67 min ago
  • MLS #: TB8353468
5
Beds
3
Baths
0
½ Baths
0.15
Acres
2,605
SQFT
$0
$/SQFT
2025
Built
Neighborhood:
Oakfield Lakes
County:
Manatee
Area:
Parrish
Elementary School:
Barbara A. Harvey Elementary
Middle School:
Buffalo Creek Middle
High School:
Parrish Community High
Property Description
Under Construction. Receive up to $10,000 towards closing costs with the use of preferred lender & title.This two-story, all concrete block constructed home has a large open-concept downstairs with a kitchen overlooking the living and dining room. The kitchen comes equipped with a refrigerator, electric range, microwave and built-in dishwasher. The first floor also features a flex room that provides an area for work or for play, a bedroom, full bathroom, and an outdoor patio. The second floor includes an expansive Bedroom 1, three additional bedrooms that surround a second living area, a third full bathroom, and a laundry room equipped with a washer and dryer. Pictures, photographs, colors, features, and sizes are for illustration purposes only and will vary from the homes as built. Home and community information including pricing, included features, terms and availability. Future Amenity Center to include Clubhouse, Resort Pool, Splash Pad, Playground, Play Lawn, Dog Park and Cable.
Exterior Features

Attached Garage Yn Yes Carport Yn No Construction Materials BlockStucco Covered Spaces 2 Direction Faces Northeast Exterior Features Hurricane ShuttersIrrigation SystemLightingSliding Doors Foundation Details Slab Garage Dimensions 20X20 Open Parking YN Yes Parking Features DrivewayGarage Door Opener Patio And Porch Features Covered Pool Private Yn No Road Surface Type AsphaltPaved Roof Shingle Water Access Yn No Water Extras Yn No Water View Yn No Waterfront Feet Total 0 Waterfront Yn No

Interior Features

Additional Rooms Bonus Room Appliances DishwasherDisposalDryerMicrowaveRangeRefrigeratorWasher Building Area Total 2605 Cooling Central Air Cooling YN Yes Fireplace Yn No Flooring CarpetLuxury Vinyl Heating Electric Heating YN Yes Interior Features PrimaryBedroom UpstairsSmart HomeThermostat Laundry Features Laundry ClosetLaundry Room Levels Two Sewer Public Sewer Water Source Public Window Features BlindsDouble Pane Windows

Property Features

Additional Lease Restrictions Per HOA Guidelines Approval Process Per HOA Guidelines Association Amenities Basketball CourtFitness CenterGatedPickleball Court(s)PoolRecreation FacilitiesTennis Court(s) Association Approval Required Yn Yes Association Fee 215 Association Fee Frequency Quarterly Association Fee Includes Community PoolPool MaintenanceRecreational Facilities Association Fee Monthly Amount 71.67 Association Fee Requirement Required Association Yn Yes Builder Name D R Horton Cdd Yn Yes Community Features Community MailboxFitness CenterGolf Carts OKPoolTennis Court(s) Down Payment Resource Yes Flood Zone Code A Garage Yn Yes Homestead Yn No Lease Considered YN Yes Lease Restrictions YN Yes Listing Terms CashConventionalFHAVA Loan Minimum Lease 8-12 Months New Construction Yn Yes Ownership Fee Simple Pet Restrictions Per HOA Guidelines Pets Allowed Yes Projected Completion Date 6/13/2025 4:00:00 AM Property Attached YN No Property Condition Under Construction Property Sub Type Single Family Residence Realtor Info CDD Addendum required Required Remarks Under Construction. Security Features Fire AlarmGated CommunitySmoke Detector(s) Senior Community Yn No Special Listing Conditions None Sw Subdiv Community Name Not Applicable Tax Annual Amount 0 Total Annual Fees 860 Total Monthly Fees 71.67 Utilities Electricity ConnectedPublicSewer ConnectedWater Available Yrs Of Owner Prior To Leasing Re No Zoning A


Listing information © 2026 My Florida Regional MLS DBA Stellar MLS..
Listing provided courtesy of D.R. HORTON REALTY OF SARASOTA: 941-256-7010.



© 2026 My Florida Regional MLS DBA Stellar MLS. All rights reserved. All listings displayed pursuant to IDX. All listing information is deemed reliable but not guaranteed and should be independently verified through personal inspection by appropriate professionals. Listings displayed on this website may be subject to prior sale or removal from sale; availability of any listing should always be independently verified. Listing information is provided for consumers personal, non-commercial use, solely to identify potential properties for potential purchase; all other use is strictly prohibited and may violate relevant federal and state law. Data last updated 2026-03-08T16:46:59.25.
 
https://bt-photos.global.ssl.fastly.net/mfr/orig_boomver_1_TB8353468-2.jpg https://bt-photos.global.ssl.fastly.net/mfr/orig_boomver_1_TB8353468-2.jpg https://bt-photos.global.ssl.fastly.net/mfr/orig_boomver_1_TB8353468-2.jpg
Logo
Cartwright Realty
24638 State Road 54
Lutz FL, 33599